
NTC-26274
Aviation Transport Security Act 2004
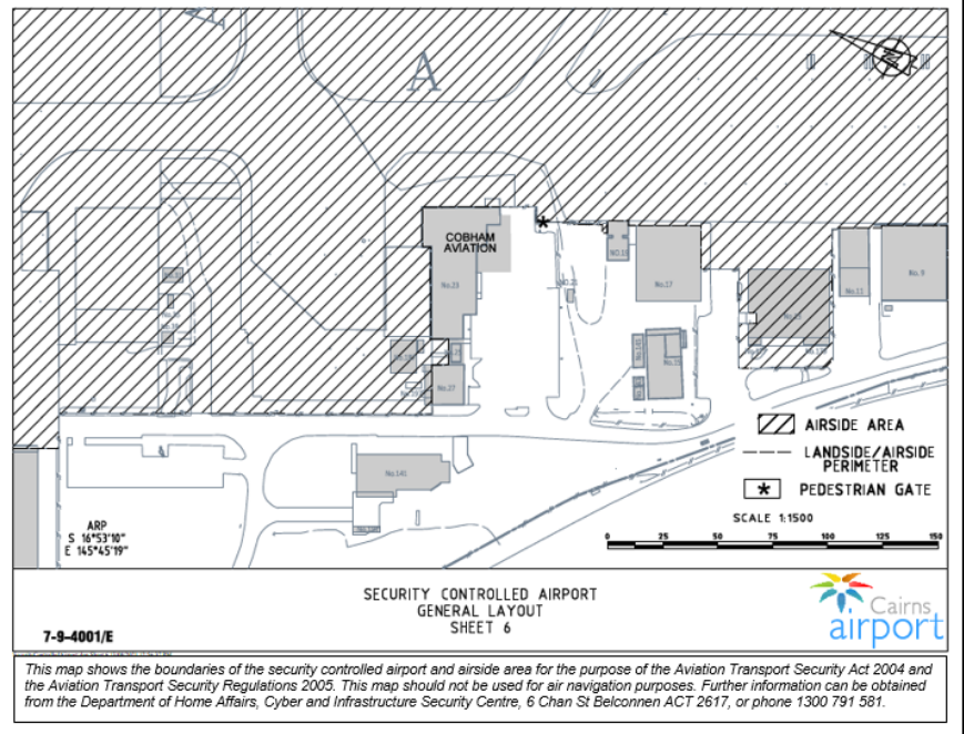
NTC-26274 - DECLARATION OF SECURITY CONTROLLED AIRPORT AND ESTABLISHMENT OF AIRSIDE AREA - CAIRNS AIRPORT
I am a Delegate of the Secretary of the Department of Home Affairs (Secretary). Under subsection 28(2) of the Aviation Transport Security Act 2004 (the Act), I:
REVOKE notice NTC-25496 which declared Cairns Airport as a security controlled airport as published in the Gazette (C2023G01113 on 29 September 2023); and
ESTABLISH, in accordance with section 29 of the Act, an airside area for Cairns Airport being that area indicated as the airside area on the attached map which forms part of this notice.
This Notice commences upon publication in the Gazette.
Nancy Haniotis
A/g Assistant Director, Regulatory Operations
Cyber and Infrastructure Security Centre
Delegate of the Secretary of the Department of Home Affairs
15 March 2024
Note:
1) Gazette means the Commonwealth of Australia Gazette
2) This Notice remains in force until otherwise revoked in writing and upon subsequent publication in the Gazette








